galéria, a metró létesítményei és működése, műszaki rajzok, ábrák

Tartalomjegyzék

mozgólépcsők

felépítmény, pályaszerkezet, sínek

Futósínek, amelyeken a metró közlekedik

M1 metróvonal, Millenniumi Földalatti Vasút, MillFAV, MFAV, FAV, kisföldalatti

M2 és M3 metróvonal

Harmadik sín, amiről a metró az áramot kapja

Jelzőberendezések

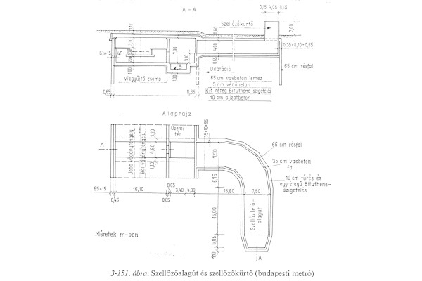
Szellőztetés

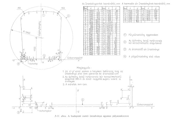
Űrszelvény

Vízbekötés és szennyvíz-kivezetés

Egyéb