galéria, M1 metróvonal, műszaki rajzok, ábrák
Tartalomjegyzék
Hossz-szelvény
Városi Közlekedés, 1996. április, 36. évfolyam, 2. szám
Alagutak
Városi Közlekedés, 1996. április, 36. évfolyam, 2. szám
Városi Közlekedés, 1996. április, 36. évfolyam, 2. szám
Városi Közlekedés, 1996. április, 36. évfolyam, 2. szám
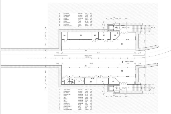
Állomások
Képek forrása: Főmterv, A föld alatti város, Városi Közlekedés, 1996. április, 36. évfolyam, 2. szám
Képek forrása: Bright Field Studios
Mexikói út, járműtelep és kihúzó